Llangua, Abergavenny
Property Features
- Substantial period house with much character
- Spacious and light rooms with high ceilings
- 3 reception rooms, 2 with bay windows
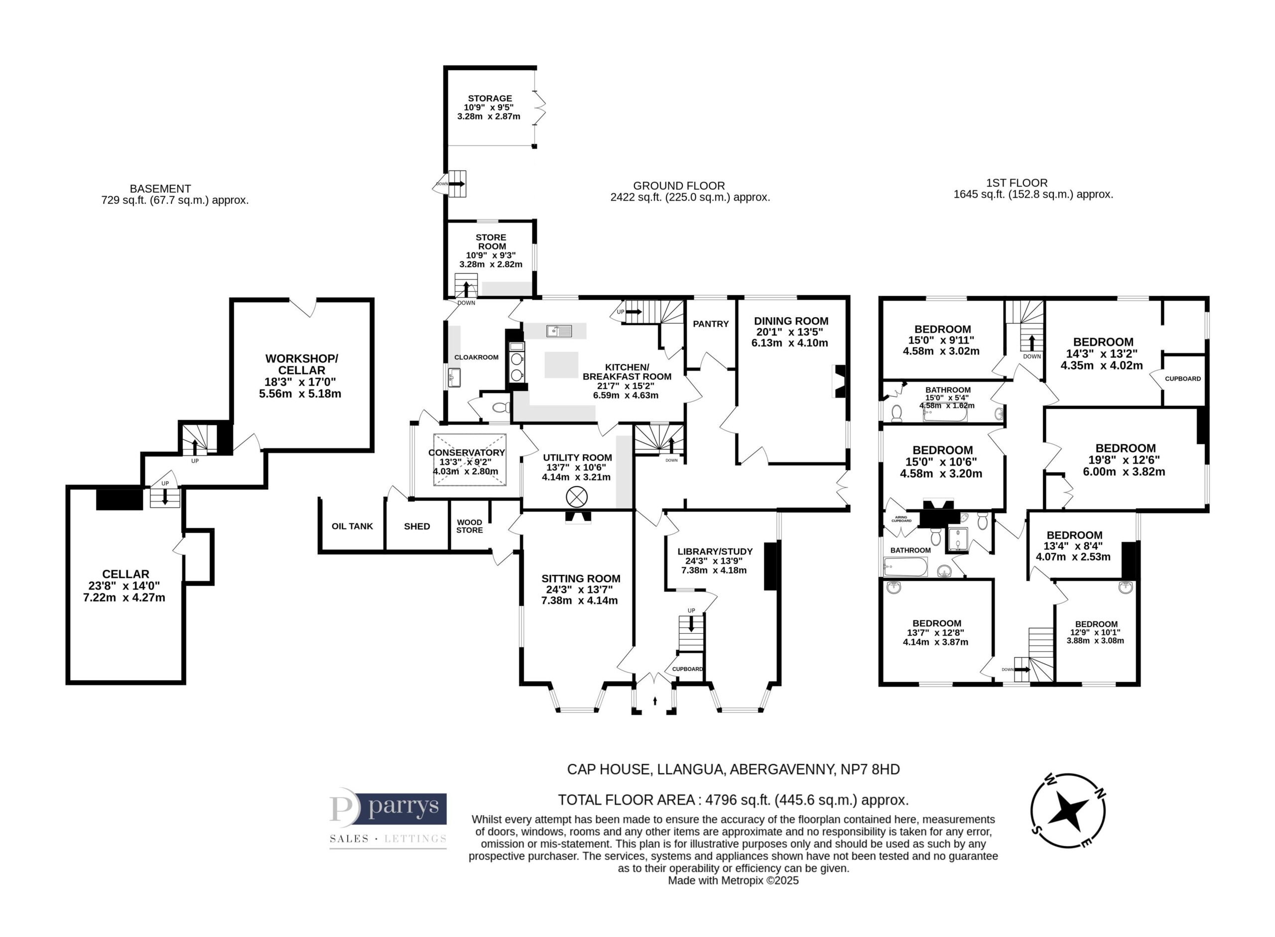
- 7 bedrooms with 2 bathrooms served by 2 staircases
- Cellar and workshop on the lower ground floor
- Separate detached 2 bedroom cottage
- Beautiful, mature level gardens of just over an acre
- Garages, stone barn, outbuildings and ample parking
- Excellent access to A roads
Property Summary
A delightful inviting period home which offers substantial living space together with the benefit of a separate detached two bedroom cottage and outbuildings. Cap House is a fine example of a double fronted stone built house evident from the moment you enter through the solid entrance door with ornate fan light over. Many period features remain providing an insight into the history of this beautiful home, these include traditional fireplaces, coved high ceilings with plaster ceiling roses and exposed timbers. To complement the house and cottage are magnificent, level gardens amounting to just over an acre and incorporate a stone terrace, expansive lawns, vegetable garden, orchard and so much more. A gated driveway leads to the main house, separate cottage, ample parking, garage and a stone barn. In addition to the stone barn are other useful outbuildings for storage.Full Details
Ground Floor
The welcoming entrance hall provides access to the principal living rooms and the main staircases rises from the hall to the first floor. Either side of the entrance hall are two bay fronted reception rooms located either side of the hallway. The sitting room has a period fireplace, the library/study fitted cupboards, both rooms are filled with light and benefit from high ceilings. Beyond the entrance hall is an inner hall connecting the front and rear of this substantial house and providing access to the utility room and conservatory.
...
The dining room is positioned next to the kitchen/breakfast room and boasts an impressive and ornate wooden fireplace with copper fire surround. The kitchen/breakfast room is fitted with a range of cupboards with worksurfaces over, a feature of the room is an alcove, ideal for a range cooker with a stone lintel over. There is ample space for a family breakfast table and a walk in pantry provides ample storage space for food, crockery and kitchen equipment. The ground floor accommodation is completed by a cloakroom, on the lower ground floor is a cellar and useful workshop. Throughout the house are period features which enhance the character of this interesting home.
First Floor
The first floor is served by the primary staircase rising from the entrance hall and a secondary staircase from the kitchen. To the first floor are 7 generously sized and light bedrooms and two bathrooms.
Outside
Cap House is approached from the road via a gated driveway leading to the side and rear of the house and continues to Peak Cottage, there is ample parking. To the right hand side of the driveway is the useful stone barn with potential, subject to any necessary planning consents. The house and cottage sit in just over an acre of mature gardens with expansive lawns, mature plants and hedges, specimen trees and vegetable garden. A stone terrace, ideal for enjoying outdoor entertaining is accessed from the conservatory. The beautiful and generous gardens complement the house perfectly. Garage and driveway with ample space for several vehicles. Electric vehicle charging point.
Separate Cottage
The separate cottage, Peak Cottage, offers an opportunity to earn ancillary income or as a dwelling for extended family. With two reception rooms, fitted kitchen, two bedrooms, bathroom and its own garden, the cottage is self contained and does not encroach on the privacy of Cap House.
Location
The property is located between Abergavenny and Hereford, approximately 5 miles to Pandy, 2 miles from Ewyas Harold and 5.5 miles to Cross Ash, in the tiny hamlet of Llangua, once a stop on the old coaching road from Abergavenny to Hereford. The popular village of Ewyas Harold offers a range of amenities including post office, butchers, doctors, dentist, fish and chip shop, petrol station, veterinary surgery, churches, public houses and primary school. The property is convenient to major road and rail links including the A465 link road to Abergavenny, Hereford leading to the M4/M5 motorway networks. There are railway stations in Abergavenny and Hereford.
AGENT’S NOTES – DIGITAL MARKETS COMPETITION AND CONSUMERS ACT 2024 (DMCC ACT)
The DMCC Act 2024, which came into force in April 2025, is designed to ensure that consumers are treated fairly and have all the information required to make an informed purchase, whether that be a property or any other consumer goods. Parrys are committed to providing material information relating to the properties we are marketing to assist prospective buyers when making a decision to proceed with the purchase of a property. Please note all information will need to be verified by the buyers' solicitor and is given in good faith from information both obtained from HMRC Land Registry and provided by our sellers.
Local Authority
Monmouthshire County Council.
Council Tax Band
Cap House H.
Peak Cottage F.
Please note that the Council Tax banding was correct as at date property listed. All buyers should make their own enquiries.
Energy Performance Certificate
Cap House E.
Peak Cottage F.
To view the full EPC please visit www. gov. uk
Tenure
Freehold.
Services
Both properties are connected to mains electricity and mains water. Oil fired central heating. Septic tank drainage. Spring water supply for garden use. Solar panels.
Broadband:
Standard, superfast and ultrafast fibre broadband available subject to providers terms and conditions. Please make your own enquiries via Openreach.
Mobile:
EE, Three, 02 and Vodaphone are all likely indoors and outdoors. Please make your own enquiries via Ofcom.
Title
The properties are registered under Title Number WA347681 and WA347682 – copies of which are available from Parrys.
Agent's Notes
The septic tank is located outside the boundary.
The cellar has flooded previously from groundwater, the house does not flood.
Lapsed Planning permission for the construction of an access point in the garden wall on the South East boundary and construction of a garage in the garden.
Please visit www. monmouthshire. gov. uk - reference number DM/2019/01128 for further information.
General Information Regarding Sales Particulars
All measurements, floorplans and land plans are for illustrative purposes only and are approximate. Measurements are quoted in imperial with metric equivalents and are for general guidance only. Whilst every effort has been made to ensure to accuracy, these sales particulars must not be relied upon and all information is to be verified by the solicitor acting for the buyer(s). Please note Parrys have not tested any apparatus or services and, therefore, no guarantee can be given that they are in working order. Photographs are shown for marketing purposes and it must not be assumed that any of the fixtures and fittings shown are included with the property, unless specifically mentioned within the sales particulars, some fixtures and fittings may be available by separate negotiation.

















































































































































