Cwmdu, Crickhowell
Property Features
- Spectacular location with panoramic views
- Circa 8 miles from the pretty Powys town of Crickhowell
- Traditional farmhouse with much charm and character
- Gardens and grounds amounting to some 15 acres
- Separate detached agricultural barns plus wooden studio
- Idyllic rural location and yet, less than 10 minutes from A roads
Property Summary
And what a welcome …….from the moment you drive along the country lane, which winds up to a hidden valley climbing gently until reaching the long, private driveway to Clwyd-y-Graig, the beauty of the surrounding countryside takes your breath away. Although located in an idyllic, rural setting, Clwyd-y-Graig is only about 1.5 miles from the A479 linking the pretty village of Cwmdu with both Brecon and Crickhowell. Set in 15 acres of gardens and grounds, this unspoilt part of South Powys offers spectacular views, mountain walks and is literally a little piece of paradise set within the stunning Brecon Beacons National Park/Bannau Brycheiniog. The house itself has been thoughtfully and tastefully renovated by the present owners, who have not only taken great care to ensure the ambience and character of the original farmhouse was retained but took the opportunity during the refurbishment to improve the fabric and energy efficiency of the house with additional insulation and replacing some of the windows. This beautiful, traditional country home is complemented by pretty, level gardens designed to enjoy the views and tranquil setting and beyond the gardens pasture fields framed by mountain views. Opposite the house are two agricultural stone barns, an upper and lower barn, with separate entrance doors which could, subject to any necessary consents be converted to ancillary/holiday accommodation or work from home space. There is also a large wooden shed, tucked away in one of the fields, which was originally a duck shed. It would require refurbishment to make a good studio or office with stunning views.Full Details
Ground Floor
Step through the painted wooden front door into a welcoming vestibule providing access to the fabulous, light farmhouse style kitchen/dining room with painted stone walls and beams. The kitchen area comprises a range of quality, modern bespoke painted cupboards and a useful island. The granite worksurfaces contrast with the soft painted doors and wrought iron handles. A decorative tiled alcove houses a Falcon range cooker with chrome fittings and concealed cooker hood and lighting over. The kitchen has been thoughtfully designed to not only provide an aesthetically pleasing area in which to enjoy the views to the rear but to maximise the enjoyment of cooking and entertaining. To the rear of the kitchen is ample space for a substantial dining table and chairs, a half glazed door opening onto the terrace with views across the valley. Aside from the dining table there is plenty of space for a sofa or armchairs.
...
The character of the room provides a modern ambience while preserving elements of its history including exposed timbers and painted doors with wrought iron door furniture. A door opens to a rear lobby with access to a cloakroom, useful utility and boot room and a painted wooden staircase to an open plan bedroom/study.
From the vestibule stone steps rise to an entrance hall with flagstone floor and a wide stone staircase rising to the first floor landing. Located off the entrance hall, which is full of character and charm, is a cosy snug with fireplace housing a woodburning stove set on a flagstone hearth, bespoke cupboards and book shelves are fitted in the alcoves either side of the chimney breast.
...
The impressive drawing room sits centrally within the farmhouse offering a place to relax, entertain or simply sit and read in a beautiful, tranquil space. A room with much character and features including quarry tiled floor, painted stone walls, exposed timbers and a stone fireplace with large wooden lintel and woodburning stove set on a flagstone hearth. A painted wooden door to the rear of the drawing room opens into a room, is either a useful store room or perhaps a cocktail pantry.
The ground floor flows as a family and entertaining space but also offers a haven of quiet and solitude.
First Floor
The primary, wide stone staircase rises from the entrance hall to the first floor split level landing where the principal bedroom and bathroom are located to one side and two further bedrooms and bathroom on the opposite side. Accessed from an inner landing, the dual aspect principal bedroom suite has generous proportions with ample space for a bed, sofa, dressing table and bedroom furniture. In keeping with the style of the interior décor throughout the house, it has built in wardrobes with painted wooden doors. Adjoining the bedroom is a contemporary bathroom with both a bath and shower and fitted bathroom furniture perfect for storage. A painted wooden staircase rises from the inner landing to a room with vaulted ceiling, presently an artist’s studio with light flooding through the large roof light and windows to the side elevation.
...
Two large bedrooms, with exposed timbers and tasteful décor are located off the main first floor landing as is a shower room with double sized walk in shower, modern in design and complemented with painted beams and traditional style wooden door. In the end bedroom there is access to a large loft space for storage.
The main landing also provides access to useful shelving for books.
Outside
A long, private driveway, flanked by pasture fields, continues to the farmhouse and stone agricultural barns located on opposite sides of the original farmyard with ample parking. The house and barns sit centrally in their own land with pasture fields to the front, rear and both sides, a combination of level and gently sloping land…. from every aspect breathtaking views. The level, lawned garden with stone terrace, mature planting and trees adjoins the rear of the house, the terrace a perfect, private spot to enjoy all that this stunning location has to offer. The gardens and grounds amount to some 15 acres and are bordered by a brook running along the lower boundary at the entrance to the property.
Stone Agricultural Barns and Outbuildings
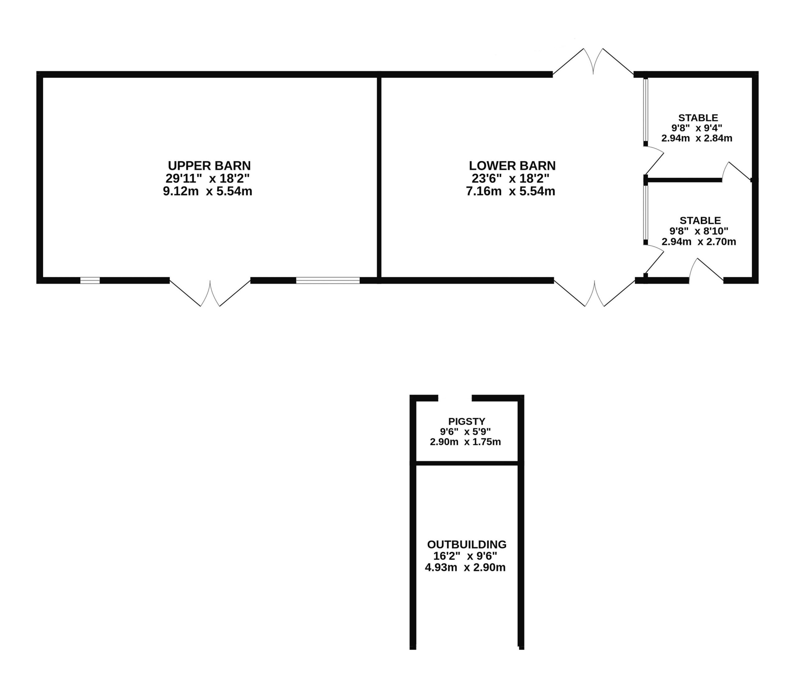
There are two traditional adjoining stone agricultural barns, an upper and lower barn each with their own separate entrance door. The two barns and other outbuildings are presently used for storage and as a garage but offer the opportunity, subject to any relevant planning consents, for conversion to ancillary or holiday accommodation, workshops, offices or studio. For equestrian enthusiasts, the original stables are still in situ.
Location
The village of Cwmdu is located in the heart of the Brecon Beacons / Bannau Brycheiniog National Park, an area renowned for its outstanding natural beauty. It is a popular and attractive village with a church, community-run public house, cafe and village hall which is the focus of various community events. The surrounding countryside, particularly the Black Mountains, offer stunning scenery with superb walks, riding and cycling routes. There are excellent road links for commuting with easy access to the A40/A479 for links to the M4/M5 and M50 motorways and the A465 for the Heads of the Valleys/Pembrokeshire. A mainline railway station is located on the fringe of Abergavenny with connections to the cities of Bristol, Cardiff and Hereford, London Paddington can be reached in less than 3 hours.
...
Crickhowell (8 miles) is a thriving, pretty town on the Powys/Monmouthshire border located on the banks of the River Usk. The town is renowned for its individual shops including butchers, bakers and greengrocers and an independent country store. Other amenities include a library, doctors and dentists’ surgeries, restaurants, post office, petrol station and a primary and secondary school. Crickhowell is well known for tourism and events including an annual walking festival, town has won a number of awards for its High Street and voted by the Sunday Times as one of the top places to live in Wales.
The picturesque village of Tretower (2.5 miles), in the Brecon Beacons / Bannau Brycheiniog National Park, is situated between Crickhowell and Talgarth. It has the remains of Tretower Court and Castle which is a popular visitor attraction and managed by CADW. The elaborate castle, with ornamental stonework was once a strong defensive building and a splendid home until it was succeeded by the Court.
...
The market town of Abergavenny (12 miles) and Brecon (13) offer a range of amenities including high street and independent shops, primary and secondary schools, doctors, dentists, a library, theatre and cinema. Abergavenny plays host to markets and events throughout the year, including the popular annual Food Festival which attracts around 20,000 visitors to the event each September.
The charming market town of Hay-on-Wye, renowned for the famous Hay Festival and its literary connections and book shops is situated on the English / Welsh border is approximately 17 miles away, the town has some interesting independent shops and a number of places to eat.
AGENT’S NOTES – DIGITAL MARKETS COMPETITION AND CONSUMERS ACT 2024 (DMCC ACT)
The DMCC Act 2024, which came into force in April 2025, is designed to ensure that consumers are treated fairly and have all the information required to make an informed purchase, whether that be a property or any other consumer goods. Parrys are committed to providing material information relating to the properties we are marketing to assist prospective buyers when making a decision to proceed with the purchase of a property. Please note all information will need to be verified by the buyers' solicitor and is given in good faith from information both obtained from HMRC Land Registry and provided by our sellers.
Local Authority
Powys County Council.
Council Tax Band
F.
Please note that the Council Tax banding was correct as at date property listed. All buyers should make their own enquiries.
Energy Performance Certificate
F.
To view the full EPC please visit www. gov. uk
Notes to Accompany the EPC
The Entrance Hall and Snug has a pitched roof and had a pitched pine panel ceiling internally which 27 years ago was covered over with insulation and plasterboard.
The study/bedroom 4, was refurbished in 2020. All windows are double glazed and the pitched roof was renewed and fully insulated.
The artists’ studio has not been renovated by the current owners and is the only part of the house where there has not been roof insulation added. The studio floor provides insulation to the first floor principal bedroom suite below.
...
The two first floor bedrooms situated off the main first floor landing were renovated in 2018. A loft space is accessible via a ceiling trapdoor in the end bedroom. The floor area of the loft has been insulated and insulation was also added to the interior surface of the roof between the eaves.
The walls are original sandstone construction and in most places are about 3 foot thick, constructed of large internal and external facing blocks with rubble infill between. They are exceptionally well insulated, cool in summer and once the rooms are heated in winter, they retain the heat very well.
Tenure
Freehold.
Services
We are advised that the property is connected to mains electricity. Oil fired central heating system, private water supply and private septic tank drainage.
Broadband:
The current owners’ broadband is beamed from a mast above Cwmdu and their current provider is Voneus Ltd. This provides a superior broadband to that provided by Openreach. A hard-wired mesh network has been installed in the house, which distributes, through a single network a stable wifi coverage throughout the property.
Mobile:
EE is variable indoors, both EE and Three are good outdoors. 02 and Vodaphone are unlikely indoors and outdoors. Please make your own enquiries via Ofcom.
Title
The property is registered under Title Number WA871245 – copies of which are available from Parrys.
Agent’s Notes
As is the case with many agricultural buildings, the roofs of the stone barns may contain some asbestos.
The neighbouring farmer has access to his adjacent fields across the lower field. A bridle path runs up the driveway, through the yard and up to the common land. Grazing rights on Clwyd-y-Graig to graze on the common land above the property, noted as 61 sheep or 12 cattle or 12 ponies or a combination thereof.
A covenant restricts the use of the surrounding land, owned by the neighbouring farmer, to agricultural purposes.
General Information Regarding Sales Particulars
All measurements, floorplans and land plans are for illustrative purposes only and are approximate. Measurements are quoted in imperial with metric equivalents and are for general guidance only. Whilst every effort has been made to ensure to accuracy, these sales particulars must not be relied upon and all information is to be verified by the solicitor acting for the buyer(s). Please note Parrys have not tested any apparatus or services and, therefore, no guarantee can be given that they are in working order. Photographs are shown for marketing purposes and it must not be assumed that any of the fixtures and fittings shown are included with the property, unless specifically mentioned within the sales particulars, some fixtures and fittings may be available by separate negotiation.
Wayleaves, Easements & Rights of Way
The property is sold subject to and with the benefit of all rights, including rights of way, easements and proposed wayleaves. Please check with the Highways Department at the local County Council for the exact location of public footpaths/bridleways.







































































































