Cross Ash, Abergavenny
Property Features
- Pretty four-bedroom detached house
- A mixture of character features with contemporary conveniences
- Located within the popular village of Cross Ash, close to the village primary school
- Driveway parking with electric charging point
- On the doorstep of the Wye Valley, Brecon Beacons/Bannau Brycheiniog and Black Mountains
- No onward chain
Property Summary
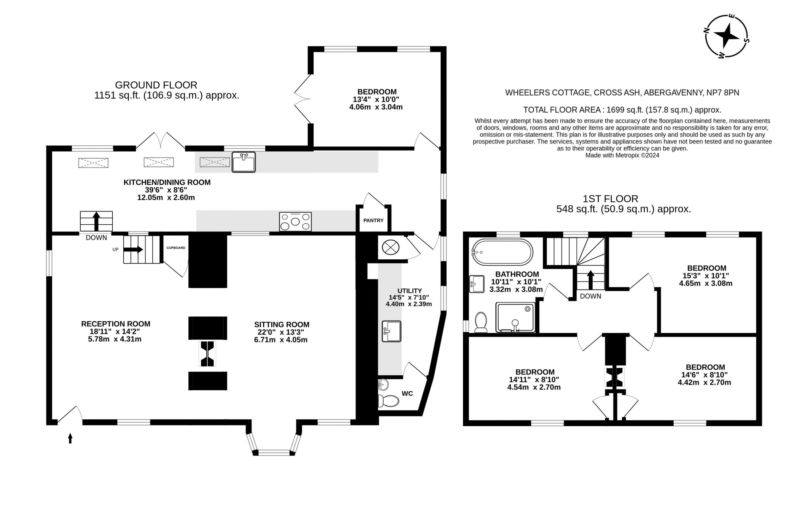
A pretty stone built cottage which has been sympathetically renovated in meticulous detail by the current owners approximately 10 years ago. Originating as two dwellings, which were converted into the one property, Wheelers Cottage has a history within the village of Cross Ash having once been the local shop and post office. There is an abundance of character throughout the cottage, interspersed with contemporary touches to ensure the period property can accommodate modern living.Full Details
Step Inside
The solid oak front door leads directly into the inviting large open space of two reception rooms separated by a double sided log burning stove set within a brick built fireplace. The sitting room has a full length bay window overlooking the front garden and an internal window looking into the kitchen. Steps lead down to the galley style kitchen/dining room which is flooded with light through the skylights and has French doors leading out to the patio area. Doors lead off to a ground floor bedroom which could also be used as a home office and have French doors opening onto the rear garden. A useful utility room can also be found just off the kitchen with a separate downstairs WC. A wooden staircase rises up to the first floor where three bedrooms can be found, all with exposed beams and brickwork, and two of which have open decorative fireplaces. A modern family bathroom with roll top bath, statement vanity wash hand basin and separate shower complete the first floor accommodation.
Step Outside
The front of the property is approached through a wooden gate with a path leading to the front door and is adjoined by a lawn area which is all enclosed by a low level stone wall. Driveway parking can be found at the rear of the property with an electric car charging point and steps leading up to the rear garden. The low maintenance rear garden has an easterly facing stone paved patio area which is accompanied by a neat lawn area. There is useful wooden storage shed and a mixture of stone wall and wooden feather board fencing which offers privacy to the enclosed garden.
Location
The village of Cross Ash sits between Abergavenny and Monmouth in an area renowned for its rolling countryside and traditional stone houses. It has a well-regarded primary school and is a short distance from a local garden centre and well known restaurants. Cross Ash lies approximately 9 miles from the historic market town of Abergavenny which has a range of amenities including doctors’, dentists’, high street retailers and individual shops, banks, cinema, library and several supermarkets together with a general hospital. The town hosts numerous events including the annual Food Festival and in the town centre are the remains of a medieval castle housing a small museum. Open air events are held in the castle grounds during the summer. On the outskirts of the town (adjoining the comprehensive school) is a leisure centre with swimming pool.
...
There are good road links for commuting (A40/A449/A465 linking to the M4, M5 and M50) and a mainline railway station. Monmouth has a variety of amenities and an excellent choice of state and independent education is available for pupils of all ages including Monmouth Comprehensive, Haberdashers’ Monmouth School for Girls and Monmouth Boys School. Monmouth provides road connections to the M4 and M5 motorways and the regional centres of Bristol and Cardiff.
AGENT’S NOTES – DIGITAL MARKETS COMPETITION AND CONSUMERS ACT 2024 (DMCC ACT)
The DMCC Act 2024, which came into force in April 2025, is designed to ensure that consumers are treated fairly and have all the information required to make an informed purchase, whether that be a property or any other consumer goods. Parrys are committed to providing material information relating to the properties we are marketing to assist prospective buyers when making a decision to proceed with the purchase of a property. Please note all information will need to be verified by the buyers' solicitor and is given in good faith from information both obtained from HMRC Land Registry and provided by our sellers.
Tenure
Freehold
Energy Performance Certificate
D
To view the full EPC please visit the GOV website.
Services
We understand that there is mains electricity, water and air source heat pump connected to the property. Drainage is to a sewerage treatment plant.
Broadband:
Standard and superfast broadband available subject to providers terms and conditions. Please make your own enquiries via Openreach
Mobile:
EE, Three, 02 and Vodaphone likely outdoors. Please make your own enquiries via Ofcom.
Local Authority
Monmouthshire County Council
Council Tax Band
G
Please note that the Council Tax banding was correct as at date property listed. All buyers should make their own enquiries.
Title
The house is registered under Title Number CYM605989 and CYM917264 – a copy of which is available from Parrys.
Agent's Notes
There is building development in close proximity to the property with six individual proposed dwellings in the process of being constructed. Full details can be found on the Monmouthshire County Council Planning Applications – using reference.
DC/2017/01335
General Information Regarding Sales Particulars
All measurements, floorplans and land plans are for illustrative purposes only and are approximate. Measurements are quoted in imperial with metric equivalents and are for general guidance only. Whilst every effort has been made to ensure to accuracy, these sales particulars must not be relied upon and all information is to be verified by the solicitor acting for the buyer(s). Please note Parrys have not tested any apparatus or services and, therefore, no guarantee can be given that they are in working order. Photographs are shown for marketing purposes and it must not be assumed that any of the fixtures and fittings shown are included with the property, unless specifically mentioned within the sales particulars, some fixtures and fittings may be available by separate negotiation.







































































