Abergavenny
Property Features
- Well-presented mid-terraced family home
- Open-plan living/dining room and three bedrooms
- Enclosed rear garden, sandstone patio and storage shed
- Close to local amenities and within a mile of the town centre
- EPC rating C
- Council tax band D
- .Deposit £1650.00
Property Summary
*THIS PROPERTY IS LET SUBJECT TO SATISFACTORY REFERENCES/CREDIT CHECKS*An attractive terraced property situated in a popular and established residential area within a mile of Abergavenny town centre and local amenities.
Full Details
Step inside
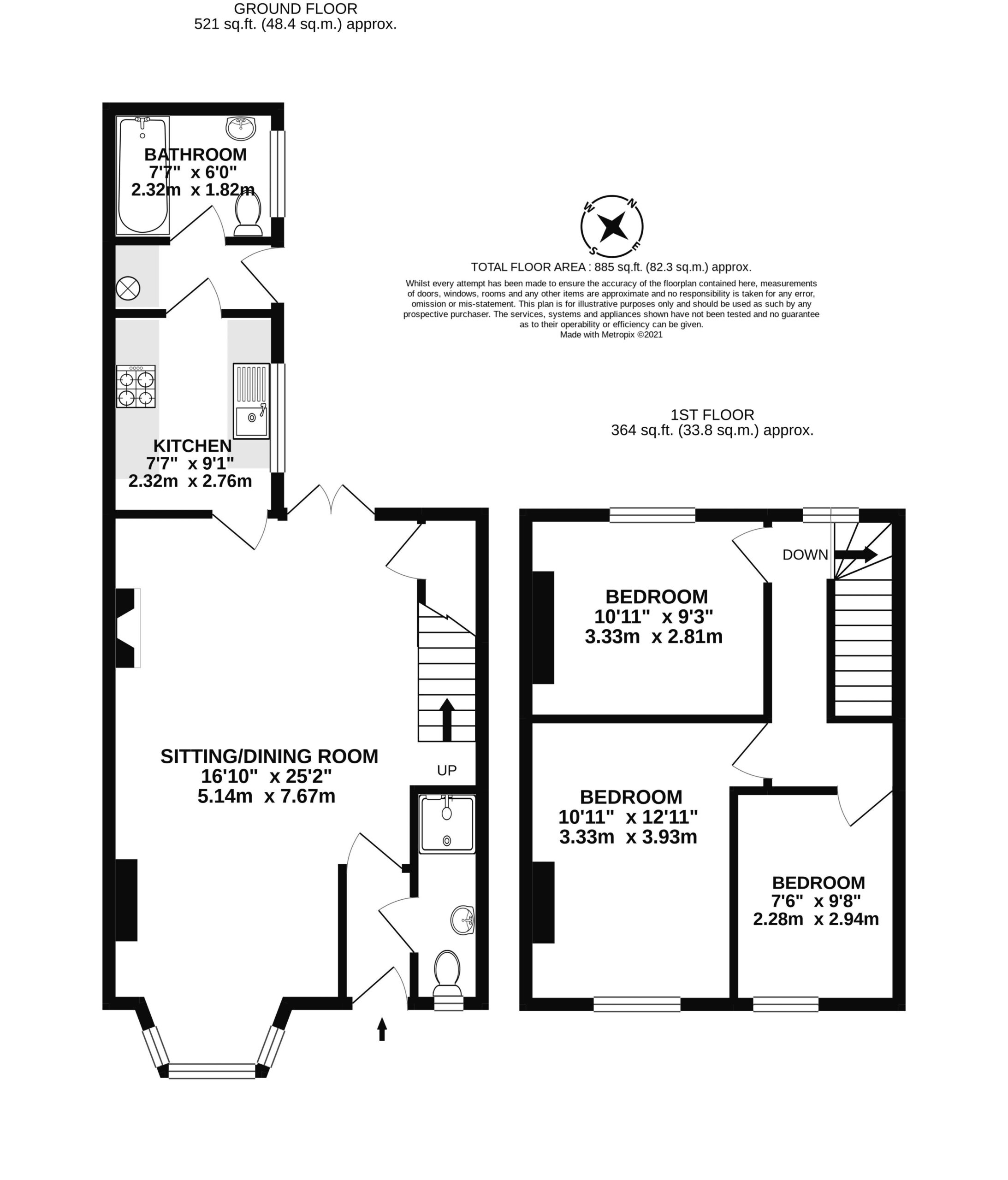
This well-presented three-bedroom house benefits from double glazing throughout. A welcoming uPVC front entrance door opens into a small entrance hall with access to a modern shower room with W.C. The light and airy open plan sitting/dining room has a bay window to the front, an understairs storage cupboard, a feature fireplace housing an electric fire and French doors to the patio and garden. From the living room a door leads to the kitchen fitted with a range of wood effect base and wall cupboards, integrated cooker with electric hob and extractor over. To the rear of the kitchen is a utility area leading to a modern family bathroom with shower over the bath and a chrome heated towel rail. Stairs rise from the living room to the first-floor landing and three bedrooms.
Step outside
The property sits behind a low brick wall and a courtyard to the front of the house. An external door from the utility area leads onto the Indian sandstone patio, a perfect area for al fresco dining. The garden is enclosed with wooden fencing and is mainly laid to lawn with mature shrub border and a garden shed.
Location
Summerfield Road is situated in a quiet location on the northern fringe of the town and approximately one mile from the centre. Abergavenny offers a range of amenities including primary and secondary schools, independent shops alongside high street stores, supermarkets, doctors, dentists and a general hospital. There are good leisure facilities plus a cinema, theatre, library, numerous public houses and many highly regarded restaurants both within the town and the surrounding villages. The area is well known for being the ‘Gateway to Wales’ and is on the doorstep of the breathtaking Brecon Beacons with the Monmouthshire & Brecon Canal a short distance away for beautiful walks. Abergavenny offers a bus station, mainline railway and excellent transport links via the A465, A40, A449 and onto the M4/M5 and M50 motorway networks.
Services
We understand that the property is connected to mains water, drainage, gas and electric.
Broadband
*Full fibre, fibre to the cabinet and copper broadband available subject to providers terms and conditions, *maximum download speed up to 1600 Mbps, upload speed up to 115 Mbps. Please make your own enquiries via https:// www. openreach.com/fibre-broadband
Mobile Telephone
Three, 02 outdoor and indoor voice/data good, EE and Vodaphone outdoor voice/data good, indoor voice/data variable. Please make your own enquiries via https:// checker. ofcom.org.uk/en-gb/mobile-coverage
Energy performance certificate
EPC rating C. To view the full EPC please visit:
https://find-energy-certificate.service.gov.uk/energy-certificate/8208-9844-0229-3326-4583
Parking
Parking does not fall within the registered title of the property and is on a communal basis.
Council tax band
Band D
Please note that the Council Tax banding was correct as at the date property was listed. All applicants should make their own enquiries.
Local Authority
Monmouthshire County Council
Title and tenure
Freehold. The registered title of the property number is WA925615 a copy is available from Parrys Rentals
Planning consents
The agent is not aware of any planning applications/consents which may affect the property. Please check: https://planningonline.monmouthshire.gov.uk/online-applications/?lang=EN
Flood risk
Very low risk of flooding from rivers, small watercourses and surface water. Please check: https://flood-risk-maps.naturalresources.wales/
AGENT’S NOTES – DIGITAL MARKETS COMPETITION AND CONSUMERS ACT 2024 (DMCC ACT)
The DMCC Act 2024, which came into force in April 2025, is designed to ensure that consumers are treated fairly and have all the information required to make an informed decision, whether that be a property or any other consumer goods. Parrys Rentals are committed to providing material information relating to the properties we are marketing to assist prospective contract holders when deciding to view and/or proceed with the application for the occupation contract of a property.
General Information Regarding Rental Particulars
All measurements are approximate and quoted in imperial with metric equivalents and are for general guidance only. Whilst every effort has been made to ensure to accuracy, these rental particulars must not be relied upon. Please note the Agent has not tested any apparatus, equipment, fixtures and fittings or services and, therefore, no guarantee can be given that they are in working order. Internal photographs are reproduced for general information, and it must not be inferred that any item shown is included with the property.































